Zum Inhalt springen
Fiedler und Partner ArchitektenFiedler und Partner ArchitektenFiedler und Partner Architekten
  • Büro
  • Arbeit
  • Projekte
  • Veröffentlichungen
  • Kontakt

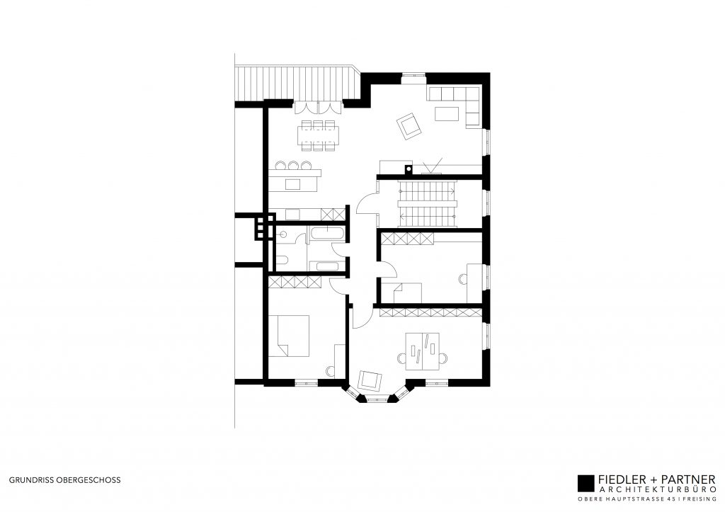
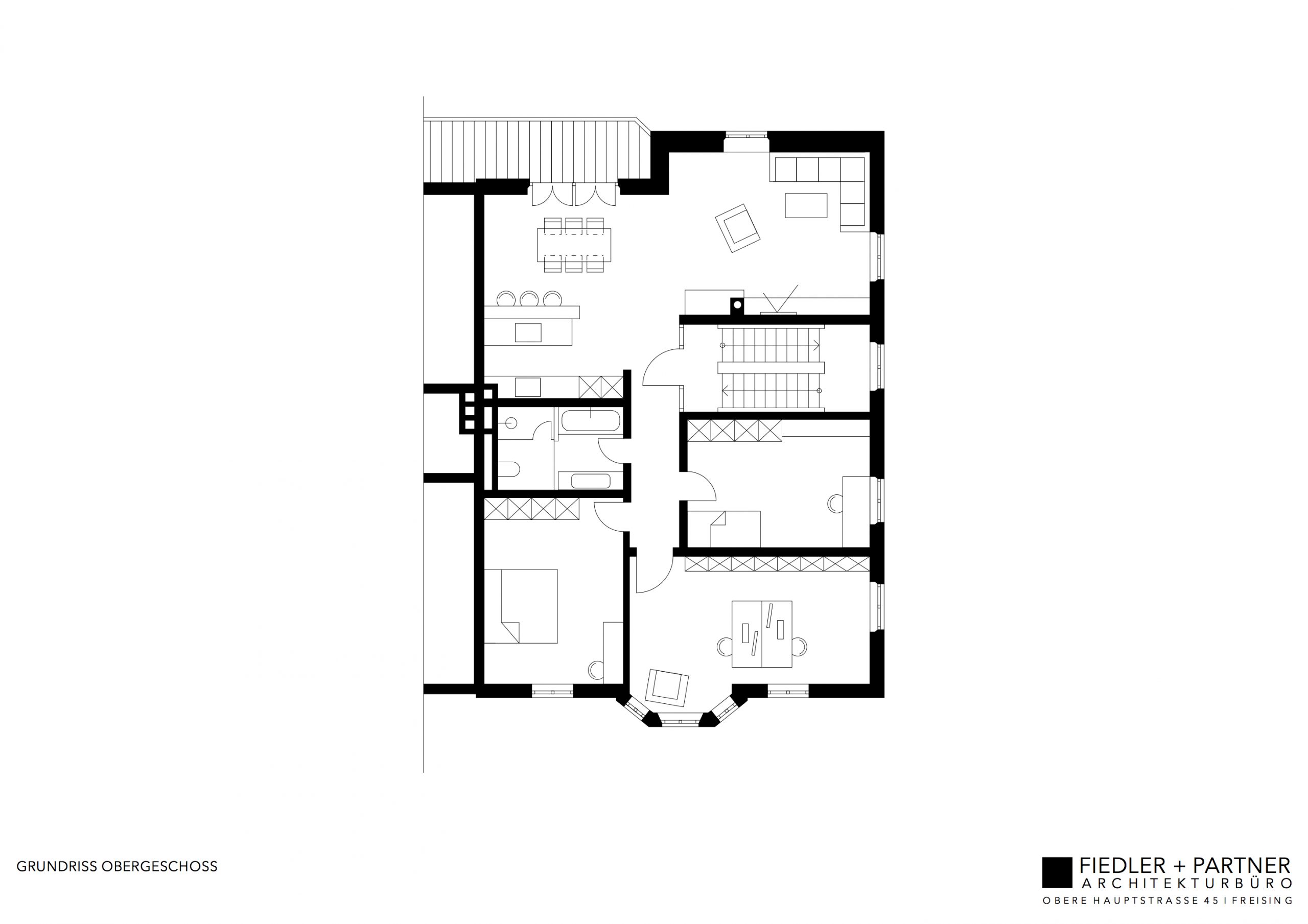
Villa-Maria_OG

Veröffentlicht 2. Februar 2022 bei 2560 × 1809 in Villa-Maria_OG
Kommentare und Trackbacks sind derzeit geschlossen.
← Zurück
Weiter →
Copyright 2026 © Flatsome Theme
  • Büro
  • Arbeit
  • Projekte
  • Veröffentlichungen
  • Kontakt
  • -
  • Newsletter