UNSERE PROJEKTE:
Neubau Haus S
Projekt: Neubau Einfamilienhaus
Bauherr: privat
Planungszeit: 2016 – 2017
Bauzeit: 2017 – 2018
In bester Lage in Freising entstand ein klassisches Einfamilienhaus, passend zur gehobenen Umgebungsbebauung.
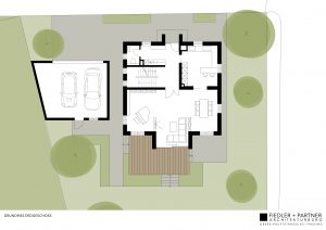
Projekt: Neubau Einfamilienhaus
Bauherr: privat
Planungszeit: 2016 – 2017
Bauzeit: 2017 – 2018
In bester Lage in Freising entstand ein klassisches Einfamilienhaus, passend zur gehobenen Umgebungsbebauung.