UNSERE PROJEKTE:
Villa Maria
Projekt: Sanierung Wohngebäude – Villa Maria
Bauherr: privat
Planungszeit: 2014
Bauzeit: 2014
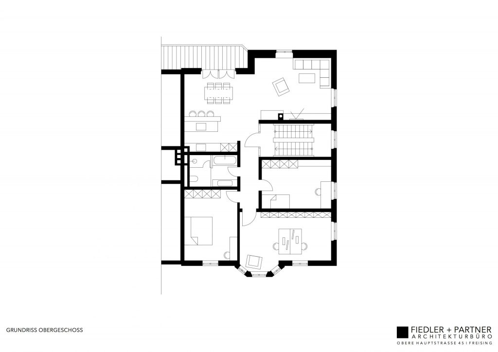
Das Büro „Fiedler + Partner“ plante und realisierte die Sanierung und behutsame Modernisierung einer gründerzeitlichen Villa-Hälfte in Freising. Das lang leerstehende, stadtbekannte Gebäude erhielt durch sorgfältige Eingriffe neues Leben. Die Arbeiten umfassten den Ausbau des Dachgeschosses sowie den Anbau von Balkonen, orientierten sich eng am historischen Bestand und bewahrten den ursprünglichen Charme. Schmuckelemente und Stuck wurden nach historischen Vorbildern rekonstruiert, um die architektonische Qualität zu erhalten. Gleichzeitig wurde die Villa an moderne Wohnstandards angepasst und zu hochwertigem, zeitgemäßem Wohnraum umgestaltet, der Geschichte und Gegenwart harmonisch verbindet.
