UNSERE PROJEKTE:
Sanierung Haus FS1
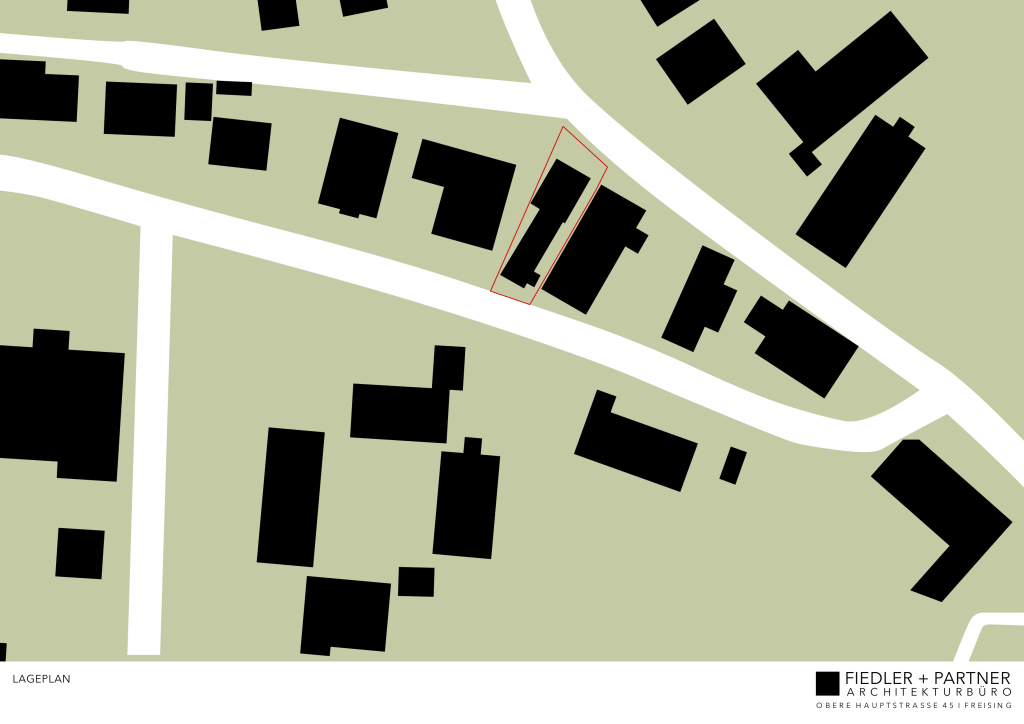
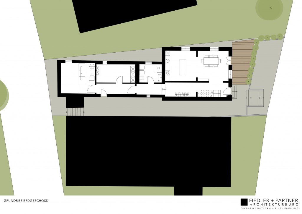
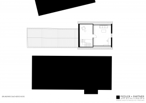
Projekt: Sanierung eines Einfamilienhauses und ehem. Schreinerei
Bauherr: privat
Planungszeit: 2016 – 2017
Bauzeit: 2017 – 2018
Das Büro Fiedler + Partner plante und realisierte den Umbau eines Einfamilienhauses mit angrenzender, ehemals gewerblich genutzter Schreinerei. In den Jahren 2017 und 2018 wurden beide Gebäudeteile zusammengeführt, aufwendig umgebaut und mit viel Liebe zum Detail modernisiert. So entstand ein harmonisches Wohnhaus, das die bestehende Substanz respektvoll integriert und zugleich den Anforderungen zeitgemäßen Wohnens gerecht wird.
